NEUF-BRISACH

EIN HAUS, ZWEI GEBÄUDE

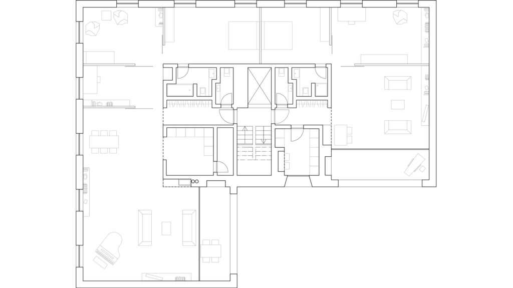
Neuf-Brisach und Breisach – Zwei Städte, zwei Häuser und dennoch dasselbe Raumprogramm? Verbindendes Element ist Ein den Grundriss Strukturierendes „Kern – Hülle“ Prinzip. Ein ZentraleR Funktionskern, der Durch eingearbeitete Nischen den angrenzenden Wohnraum bespielt, Bildet dabei die Grundlage. Gegenpart ist Die Hülle, welche sich in den Städtebaulichen Kontext einfügt und Ortsspezifische Merkmale aufgreift.

Projektdaten

Büro

FG Bauplanung und Entwerfen,
Prof. Walter Nägeli
Karlsruher Institut für Technologie

Architekt

Katrin Tilsner

Jahr

2013

Programm

Bachelorthesis